CLT HOUSE
Amma
-
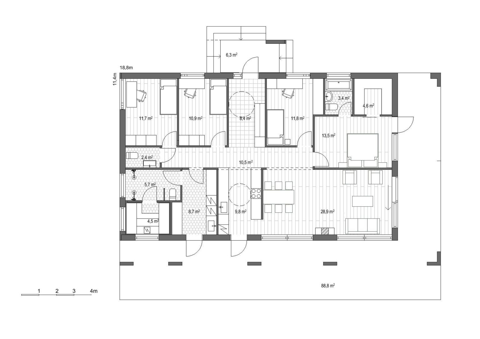
Total surface area
229.9 m2 -
Floor area
134.8 m2 -
Terraces and/or balconies
95.1 m2 -
Floors
1
Ask for more information
Total surface area
229.9 m2Floor area
134.8 m2Terraces and/or balconies
95.1 m2Floors
1Ask for more information