LOG HOUSE
Capella
-
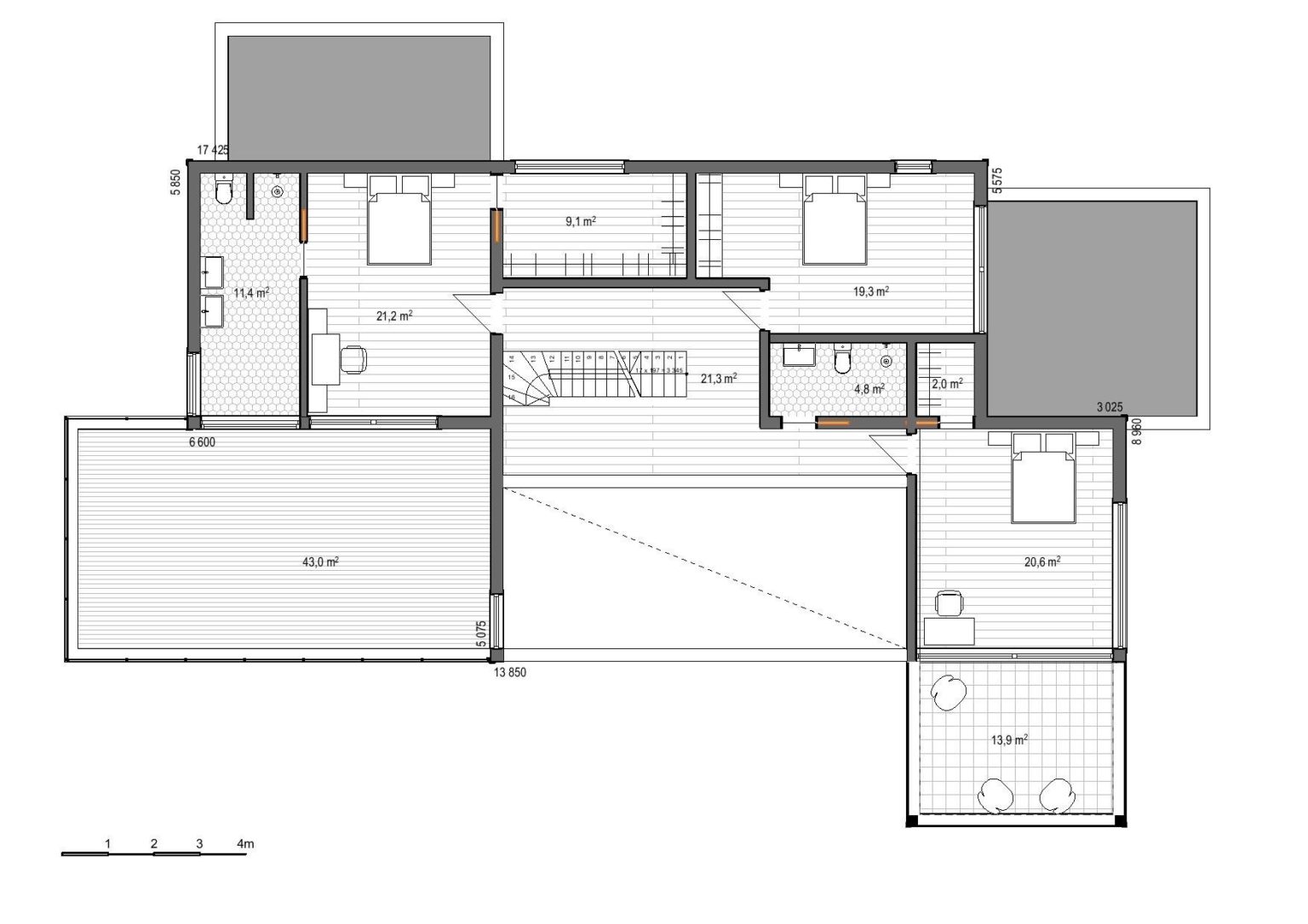
Total surface area
454.5 m2 -
Floor area
270.4 m2 -
Terraces and/or balconies
184.1 m2 -
Floors
2
Ask for more information
Total surface area
454.5 m2Floor area
270.4 m2Terraces and/or balconies
184.1 m2Floors
2Ask for more information