CLT HOUSE
Clota
-
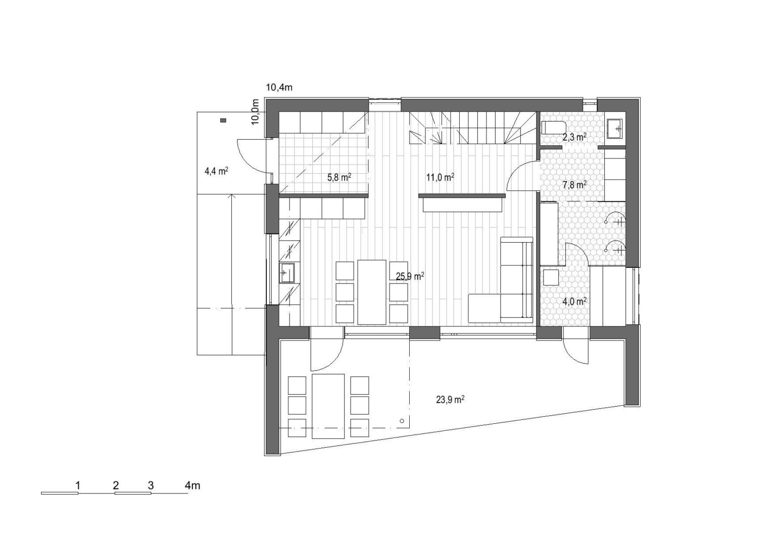
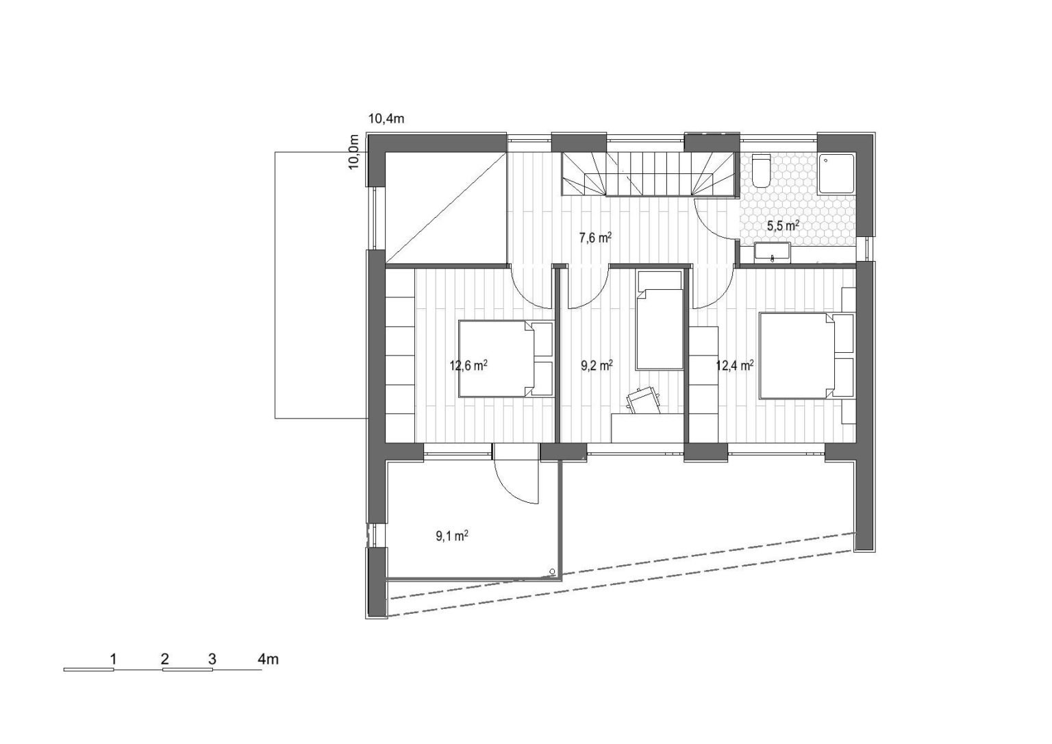
Total surface area
141.5 m2 -
Floor area
104.1 m2 -
Terraces and/or balconies
37.4 m2 -
Floors
2
Ask for more information
Total surface area
141.5 m2Floor area
104.1 m2Terraces and/or balconies
37.4 m2Floors
2Ask for more information