LOG HOUSE
Ebore
-
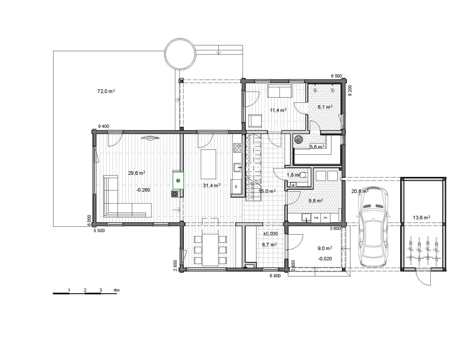
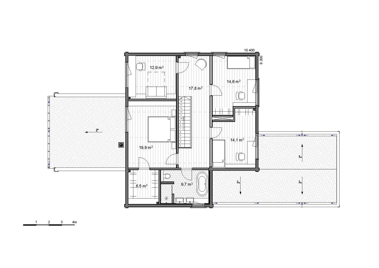
Total surface area
328.1 m2 -
Floor area
226.5 m2 -
Terraces and/or balconies
81 m2 -
Floors
2
Ask for more information
Total surface area
328.1 m2Floor area
226.5 m2Terraces and/or balconies
81 m2Floors
2Ask for more information