CLT HOUSE
Kronos
-
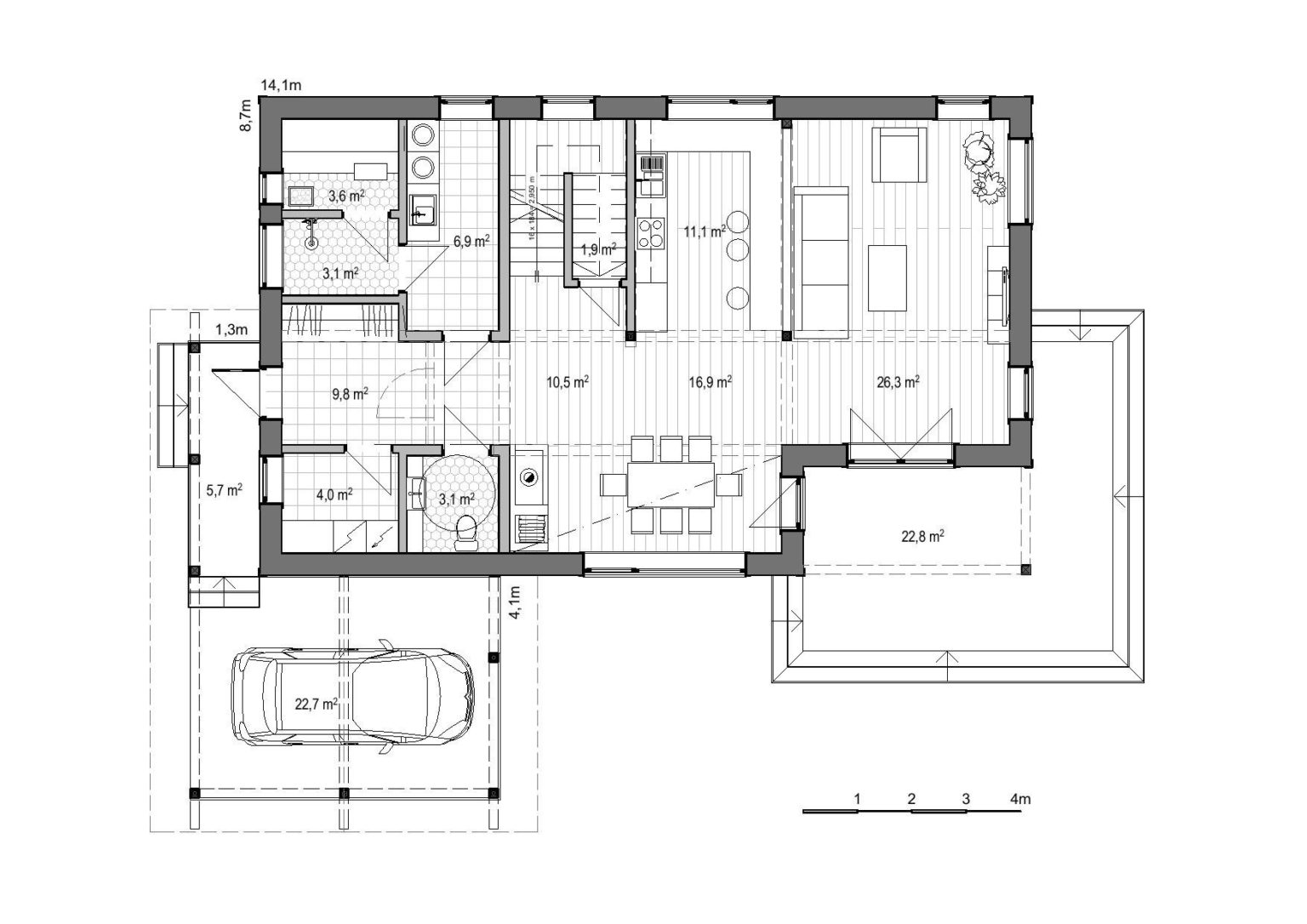
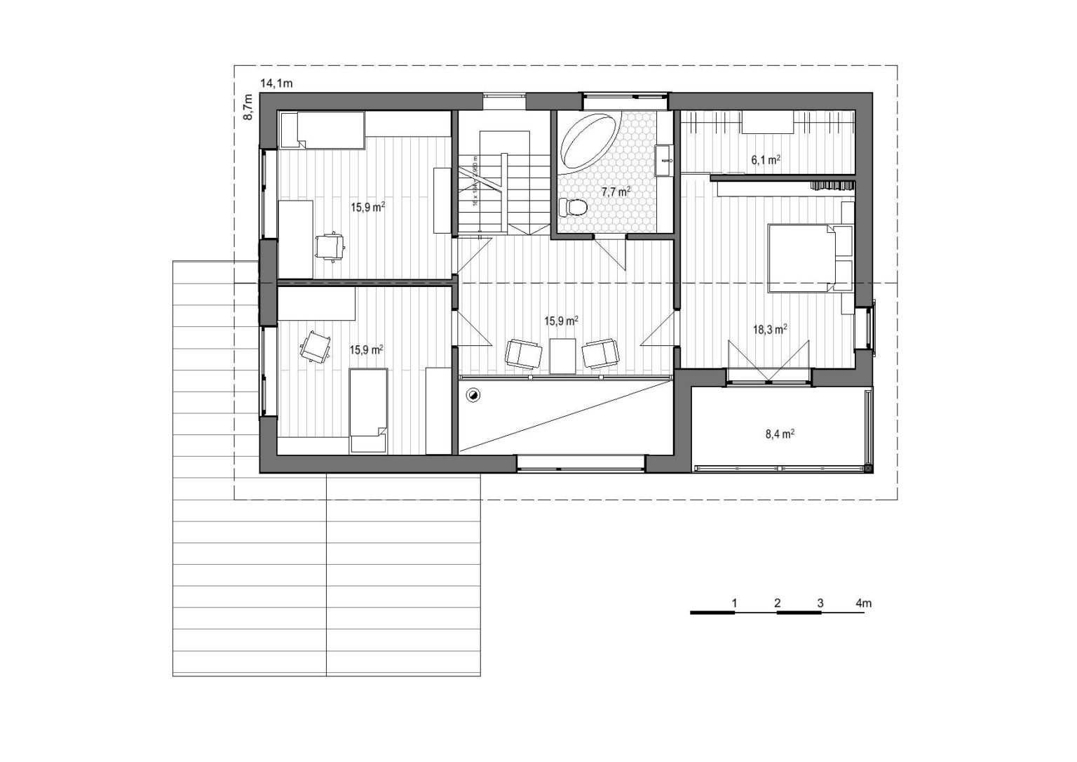
Total surface area
236.6 m2 -
Floor area
177.0 m2 -
Terraces and/or balconies
36.9 m2 -
Floors
2
Ask for more information
Total surface area
236.6 m2Floor area
177.0 m2Terraces and/or balconies
36.9 m2Floors
2Ask for more information