LOG HOUSE
Saule
-
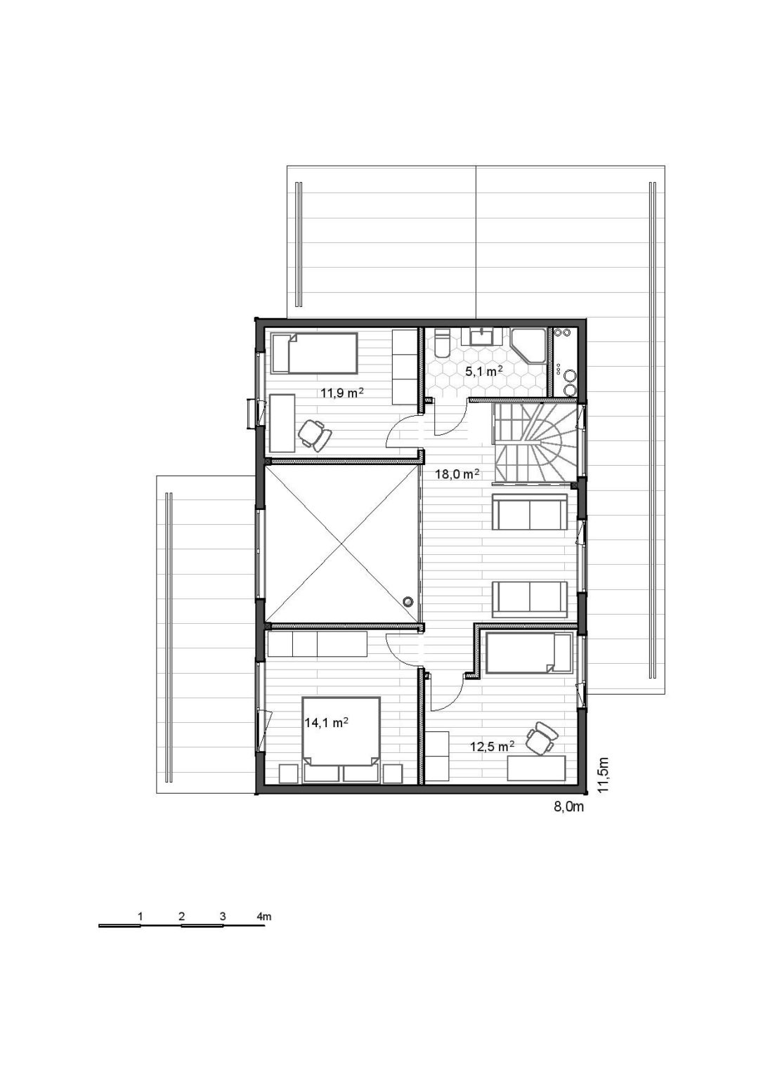
Total surface area
204.6 m2 -
Floor area
148.5 m2 -
Terraces and/or balconies
36.9 m2 -
Floors
2
Ask for more information
Total surface area
204.6 m2Floor area
148.5 m2Terraces and/or balconies
36.9 m2Floors
2Ask for more information