LOG HOUSE
Aibell
-
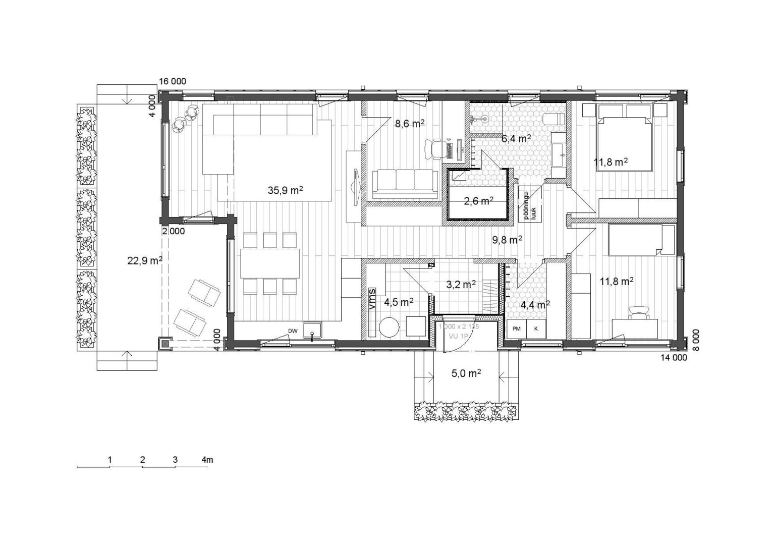
Total surface area
126.9 m2 -
Floor area
99.0 m2 -
Terraces and/or balconies
27.9 m2 -
Floors
1
Ask for more information
Total surface area
126.9 m2Floor area
99.0 m2Terraces and/or balconies
27.9 m2Floors
1Ask for more information