LOG HOUSE
Elegua
-
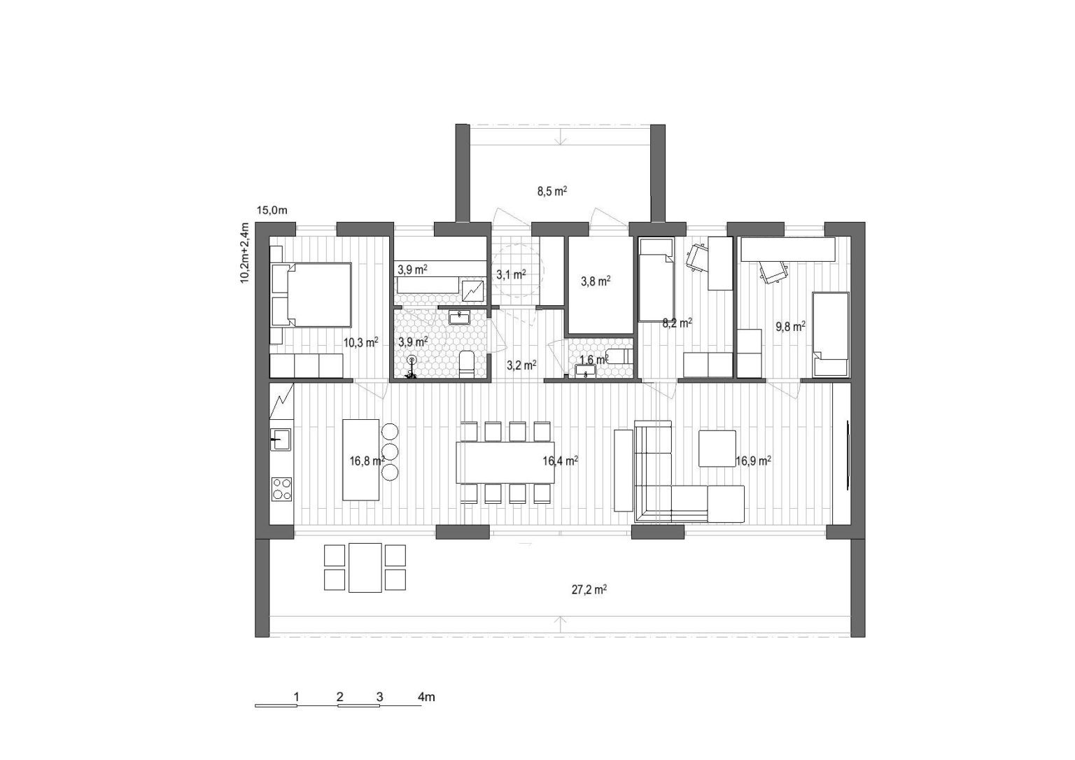
Total surface area
133.6 m2 -
Floor area
97.9 m2 -
Terraces and/or balconies
35.7 m2 -
Floors
1
Ask for more information
Total surface area
133.6 m2Floor area
97.9 m2Terraces and/or balconies
35.7 m2Floors
1Ask for more information