CLT HOUSE
Haltia
-
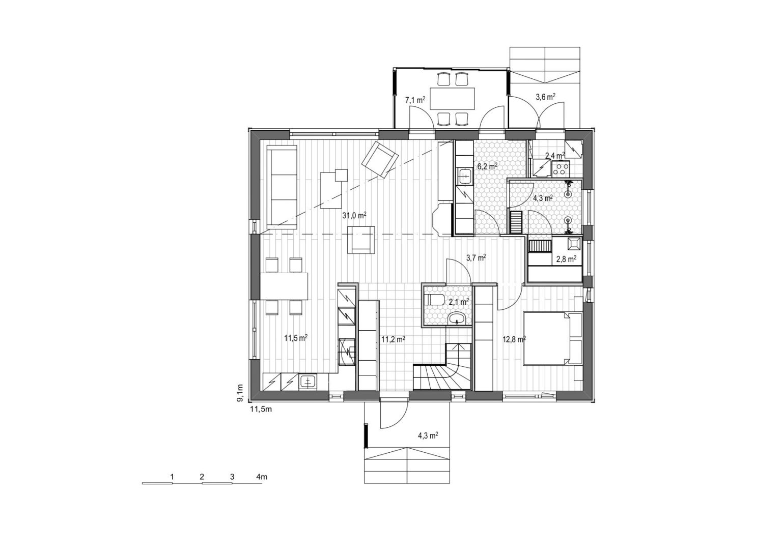
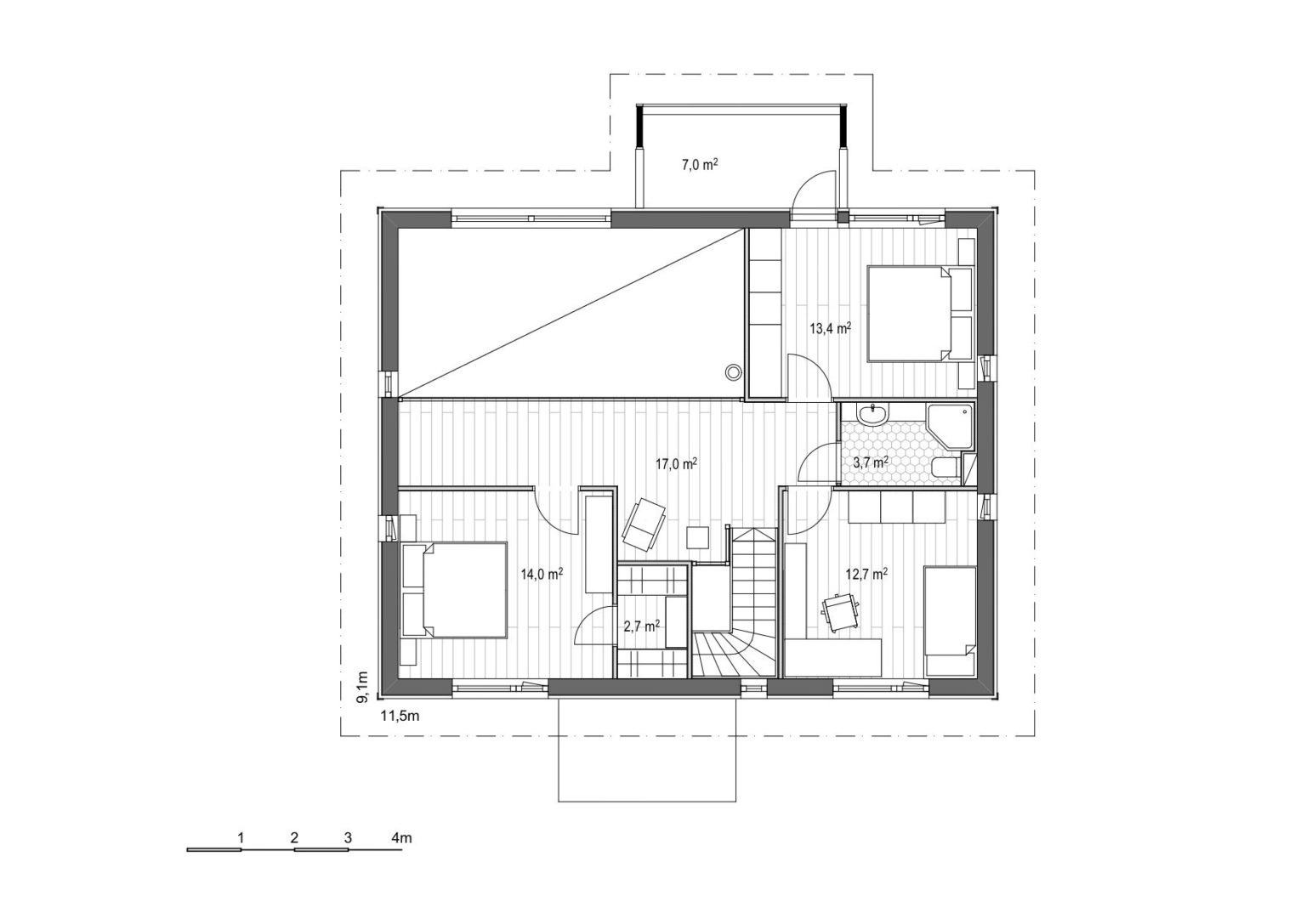
Total surface area
173.5 m2 -
Floor area
151.5 m2 -
Terraces and/or balconies
22.0 m2 -
Floors
2
Ask for more information
Total surface area
173.5 m2Floor area
151.5 m2Terraces and/or balconies
22.0 m2Floors
2Ask for more information