Pikk-lühike-pikk
-
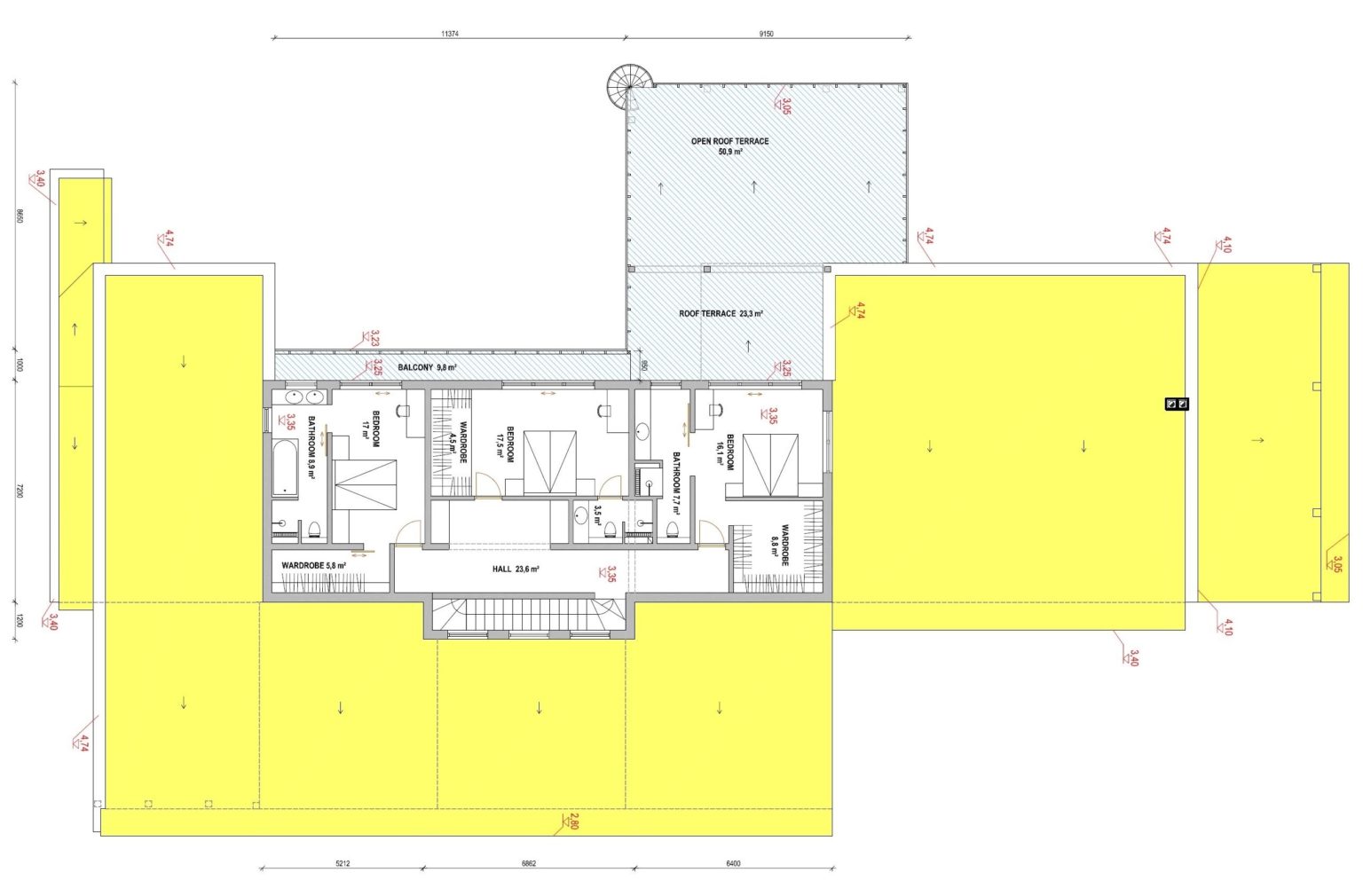
Total surface area
697.4 m2 -
Floor area
356 m2 -
Terraces and/or balconies
266.4 m2 -
Floors
2
Ask for more information
Total surface area
697.4 m2Floor area
356 m2Terraces and/or balconies
266.4 m2Floors
2Ask for more information